VW Leeds
Commercial vehicle dealership

Stuff to do

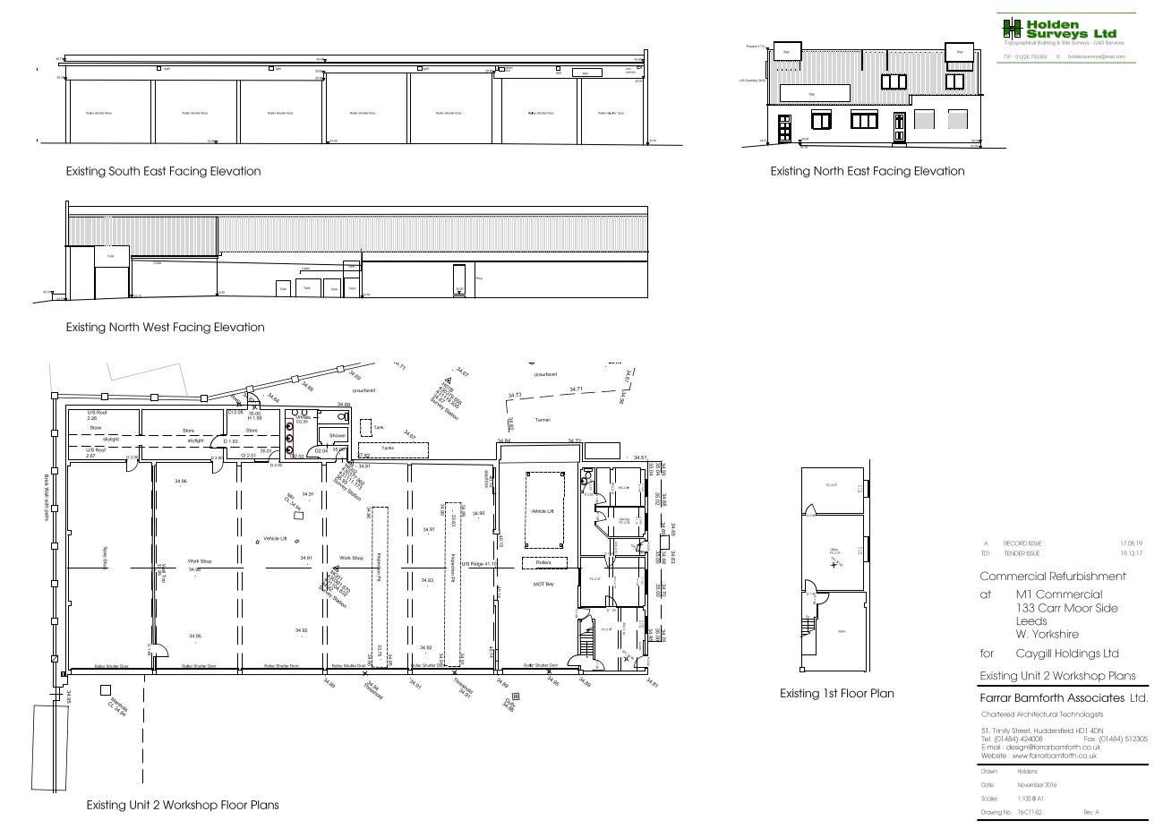
We were tasked with converting two existing buildings (former truck MOT centre) that were no longer fit for any purpose into a cohesive space to be used as a commercial van dealership for Volkswagen (VW Van Centre West Yorkshire)

How we got stuff done

Our biggest objective was to join the two existing buildings to create a single structure that presented and functioned as though it has always been one space.

To achieve this, we stripped the buildings back to their original frames and re-cladded them to create uniformity. The buildings were fully renovated and modernised to make them suitable for use as a vehicle dealership. Most significantly, we created a glazed link building to join the two structures together that not only created a functional space within but completed the external presentation of one purpose-built development.

This also included an MOT bay, workshop, parts storage, wash & sign writing bay, offices, and a public showroom.

 

  • We have used Joe & John for many years - notably to develop 3 Volkswagen Main Dealerships of which they provided a full turn-key process - we can’t speak highly enough of what they do! Great people and a great business. Thanks for everything.

    Josh Caygill, VW Leeds

Architectural team

  • Associate

    Joe Hobson

    Associate

    Accreditations: BSc (Hons) Architectural Technology, MCIAT, CSCS – Professionally Qualified Person

    Skills: Autodesk CAD, Autodesk Revit / BIM, Contract Administration, Project Management, Principal Designer, Lumion / Twinmotion, SketchUp, Drone Operator and CAA licence holder

    About Joe

    As Associate, Joe is Tony’s right-hand man, playing an integral role in running the business and leading the team. Joe focuses predominantly on commercial and industrial clients and is a skilled project manager. Starting his career with Farrar Bamforth in 2010, he briefly went over to the dark side (Leeds) in 2015 but returned to the FBA fold in 2017 to take up a senior management role (and also because we’re awesome!). He introduced BIM and Revit to Farrar Bamforth and is the driving force behind our continued compliance and best practice in this area. His favourite project to date was the Magic Rock Brewery and Bar, in equal parts due to the creativity of the project and his love of beer.

    And finally…

    A lathering of high-end butter, Lurpak, is all Joe needs on his toast. Joe is a Civil Aviation Authority license holder and drone operator and, when he’s not working, enjoys following Huddersfield Town Football Club, music, travel, and time with the family.

    ×

Architectural services provided

  • Feasibility Study

    MORE INFO

    Feasibility Study

    A feasibility study allows you to comprehensively evaluate the viability of an architectural project before committing significant investments to it. Viability is assessed from architectural, financial, and environmental perspectives. As well as the functional aspects of the build, it also includes some preliminary designs, allowing you to start visualising the outcome. The process could include a pre-application submission to the planning department for their opinion prior to a formal application. Conducting a detailed feasibility study protects you against the, often costly, ‘surprises’ that can come from not anticipating and taking steps to avoid the pitfalls that come from not being suitably prepared.

    ×
  • Planning

    MORE INFO

    Planning

    Applying for and gaining the appropriate planning permission is a vital element of the architectural process; without it, you can’t proceed. Planning policy can be complex and, if not navigated correctly, can be time consuming and, sometimes, unsuccessful. We know planning. We understand the policies and the application requirements; in fact, we have a track history of securing planning permission on complex sites that initially seemed problematic.

    ×
  • Project Management

    MORE INFO

    Project Management

    Project management is all about taking care of the whole shebang. It’s more than contract administration, it’s holding your hand through the whole process: managing all parties, making sure that things happen when they should and to the standards demanded. We also ‘sort stuff out’, because not everything goes to plan all the time and fixing s**t is all part of the service! Project management of a build removes the stress from you and gives you peace of mind that stuff is just getting done.

    ×
  • Building Regulations

    MORE INFO

    Building Regulations

    Building regulations are simultaneously the rules that keep us safe and the requirements that give architects and builders headaches as they strive for compliance with ever-evolving specifications. Not a problem for us though, as several members of the team live for the minutiae and details of regulations, and standards so we’re all over them. That not only means that your development complies with (and often, exceeds) building regs but that we also know the strategies for working with regulations in ways that don’t compromise creativity, function, or budgets.

    ×
  • Tender

    MORE INFO

    Tender

    There are multiple trades, suppliers, contractors, and consultants involved in any build. Sourcing the right ones is a central component of the process and doing that needs to be fair, transparent, and objective-driven. We can conduct tendering to ensure that each job gets the right providers in place to deliver on the scheme we’ve created.

    ×
  • Contract Administration

    MORE INFO

    Contract Administration

    Contract administration is all about making sure everything happens according to the terms of the contract. When we take on responsibility for contract administration, you can be reassured that everyone delivers as agreed. That means providers are held to account, budgets are tightly managed, and deadlines are met.

    ×

Love this stuff?

If you love a commercial development, why not take a look at how we have developed a site with existing buildings for VCEP Ltd, to create multi-purpose commercial and industrial units across several phases of development or contact Joe joe@farrarbamforth.co.uk or anyone else on the team to discuss what we can do for you on 01484 424008.

What we're up to