Hexagon Tower Laboratory Refurbishment
Chemical R&D Business

Stuff to do

The overall brief for this project was the refurbishment of an existing laboratory at Hexagon Tower in Manchester for a business specialising in chemical research & development (R&D). The project included dividing the space into two separate laboratories, incorporating a 9 high walk-in fume cupboards up to 3.6m high, and installing a large air handling unit (AHU). Unsurprisingly, the nature of working on a laboratory was extremely complex with several issues to navigate:

  • The placement of the 9m long AHU on the roof requiring analysis of the load on the existing structure, the noise impact on the local residential area, and the associated planning permissions
  • Appropriate precautions to manage the risk of explosion due to the flammable gases used and produced by the laboratory
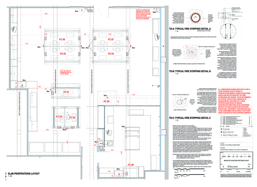
  • Introducing a large amount of ductwork, electrical cables, and pipework without disrupting the reinforced concrete floor slabs, reducing the number of penetrations and avoiding supporting structures below, while retaining sufficient space for penetrations to be fire stopped
  • Avoiding creating a ‘room within a room’ when splitting the space and the implications for fire safety.
  • Future-proofing the space to allow for flexibility going forward due to the constantly evolving nature of research & development laboratories.

How we got stuff done

This was a highly technical project and required precise detail and liaising with multiple partners to ensure we got everything right. We started with comprehensively surveying all aspects of the structure, including drone surveys for the roof, and we created a cloud based Common Data Environment to manage information.

To meet all the demands of the project, we delivered the following:

  • Worked with Building Control and the Landlord’s Agent to achieve compliance and satisfy rigorous requirements
  • Completed a planning application and discharge of conditions
  • Worked as Principal Designer to minimise potential H&S risks on site
  • Engaged a team of specialist consultants and contractors including an acoustic consultant, structural engineer, fire safety specialists, and laboratory specialists.
  • Managed the design and co-ordination of architectural elements
  • Rationalised the number of penetrations and had the floor slab surveyed by a structural engineer
  • Created a fire-protected lobby to provide a safe space for staff to evacuate to in the event of an emergency
  • Created a detailed design for the laboratory fit-out, including setting out, wall linings, desk layout, finishes, ceiling, and fire strategy.

Due to the attention to detail and management of the multiple facets of this project, as well as creative solutions to the inherent issues, we helped to deliver a slick, modern laboratory that meets all of its stringent requirements.

  • Desmo has worked with Farrar Bamforth for Colour Synthesis Solutions at Hexagon Tower, Manchester on a 1.3 million 150m2 laboratory project requiring extensive design and management. FBA have been instrumental in all aspects of the project as principal designer with a great team focused on delivering accurate information, technical knowledge, and clear assembly of construction drawings. Without them the project would have been very hard work.

    John Robertson, Desmo (Contractor Partner)
  • I was thoroughly impressed with the service provided by Farrar Bamforth Architecture. They truly understood our vision and delivered exceptional drawings and plans, which helped us secure permits for the alterations to our property and provided clear guidelines for the construction team. The team was professional, communicative and always willing to assist, even with the numerous changes we needed to make. I highly recommend them to anyone seeking top-quality architectural services."

    Client

Architectural Team

  • Architectural Technologist

    Nathan Pearce

    Architectural Technologist

    Accreditations: BSc (Hons) Architectural Technology, ACIAT

    Skills: Adobe Photoshop, Autodesk CAD, BIM / Autodesk Revit, Computer Generated Images (CGI), SketchUp, Twinmotion

    About Nathan

    Joining us in 2023. Nathan is one of the freshest faces at Farrar Bamforth but he’s already making an impact. Nathan pursued a career in architecture due to a desire to create spaces that have a positive impact on both people and the environment and his favourite project so far was a residential development in Calderdale which made use of BIM to design a mix of dwellings on a multi-level site. He is also a regulation and policy enthusiast, and devoted to all the small details that help to keep us compliant. It was this attention to detail that helped secure him a promotion from Junior Architectural Technologist to Architectural Technologist in January 2024. See more here.

    And finally…

    Nathan’s favourite toast topping is… butter. In Nathan’s words “let’s make the world a butter place”. When not at work, Nathan enjoys baking cakes (more butter!) and then wondering where they’ve gone. We’re sure you feel ‘butter’ for knowing that 🙄

    ×

Architectural services provided

  • Feasibility Study

    MORE INFO

    Feasibility Study

    A feasibility study allows you to comprehensively evaluate the viability of an architectural project before committing significant investments to it. Viability is assessed from architectural, financial, and environmental perspectives. As well as the functional aspects of the build, it also includes some preliminary designs, allowing you to start visualising the outcome. The process could include a pre-application submission to the planning department for their opinion prior to a formal application. Conducting a detailed feasibility study protects you against the, often costly, ‘surprises’ that can come from not anticipating and taking steps to avoid the pitfalls that come from not being suitably prepared.

    ×
  • Design

    MORE INFO

    Design

    There is a much-used phrase that applies to all design but was specifically coined for architecture: ‘form follows function’ and it’s something that we live by. Primarily, buildings and interios have to work so we listen to our clients when they tell us what the structure needs to do for them. For our commercial and industrial clients, this is often 95% of the brief. For residential projects, whether a housing development or a bespoke high-end dwelling, functionality and aesthetic appeal need to be finely balanced. We are equally skilled in both approaches and always client-led.

    ×
  • Building Regulations

    MORE INFO

    Building Regulations

    Building regulations are simultaneously the rules that keep us safe and the requirements that give architects and builders headaches as they strive for compliance with ever-evolving specifications. Not a problem for us though, as several members of the team live for the minutiae and details of regulations, and standards so we’re all over them. That not only means that your development complies with (and often, exceeds) building regs but that we also know the strategies for working with regulations in ways that don’t compromise creativity, function, or budgets.

    ×
  • Project Management

    MORE INFO

    Project Management

    Project management is all about taking care of the whole shebang. It’s more than contract administration, it’s holding your hand through the whole process: managing all parties, making sure that things happen when they should and to the standards demanded. We also ‘sort stuff out’, because not everything goes to plan all the time and fixing s**t is all part of the service! Project management of a build removes the stress from you and gives you peace of mind that stuff is just getting done.

    ×
  • Principal Designer

    MORE INFO

    Principal Designer

    All projects that involve more than one contractor must have an appointed Principal Designer. It’s their job to advise and assist you on all aspects of health and safety on the project, starting at pre-construction phase. We can act as Principal Designer, ensuring that all parties comply with their responsibilities and that the build is safe for all working on it, all who may be affected by the works, and all who will use it once completed.

    ×
  • CGI

    MORE INFO

    CGI

    Photo-realistic Computer Generated Images (CGIs) bring a project to life like nothing else, creating a vision of the finished development or interior before a hard hat and hi-vis jacket has even been donned! Our CGI artists transform technical specs into hyper-real representations of what we can deliver.

    ×
  • Drone Survey

    MORE INFO

    Drone Survey

    Drone technology allows us to survey the buildings and entire site from the air, providing us with vital insights that would previously have been very difficult to access. It also allows us to easily check on the progress of works from a bird’s eye perspective. We can also offer you pretty pictures of your finished development for the company brochure, if you want them! We have our own drone and Associate Joe Hobson is a Civil Aviation Authority insured and licensed drone operator.

    ×

Love this stuff?

This is just one example of a complex industrial design that had to be focused on process and stringent compliance. See our other case studies on Cummins Turbo Technology, Elis, and Medequip. If you would like more information about this or any other project, please don’t hesitate to email Nathan Pearce at nathan@farrarbamforth.co.uk or call 01484 424008 where any member of the team would be happy to help you.

What we're up to