Community Places Sprotbrough
Specialist residential accommodation for people with complex needs

Stuff to do

Community Places is a specialist residential service providing high standards of support, personal care, and accommodation for adults who have a learning disability, autism, or complex needs including behaviour that may challenge.

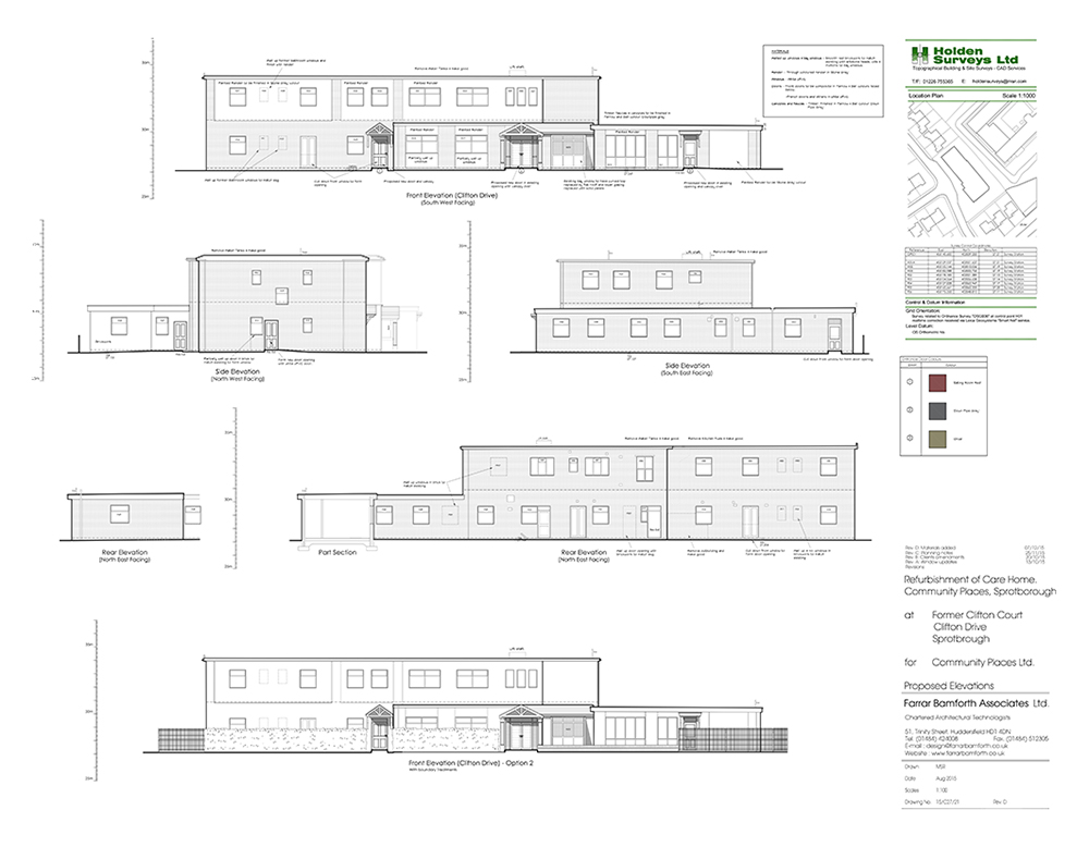
Our brief for Community Places Sprotbrough was to remodel an existing care home for the elderly and create a homely environment that could not only meet the complex needs of its users and provide a safe space, but could help them to learn, develop their skills, and maximise their potential.

How we got stuff done

Working on developments for people with complex needs such as this is something of a specialist area of interest at Farrar Bamforth as the potential to make a positive impact is both a challenge and a privilege.

The development includes eight en-suite bedrooms, four communal lounges, a dining room, a commercial kitchen and residents’ kitchen, to allow them to learn life skills and to prepare for living in the community. There are also six self-contained apartments, each with their own gardens. The ethos of Community Places is to allow residents to develop increasing levels of independence, and the environment had to support that.

Our solution for the apartments featured kitchens that could be closed off when not in use. Sensory spaces, including shower rooms, bathrooms, and general sensory rooms were designed to stimulate the senses to create calm, reassurance, and joy using colour, light, sound, and texture. Outdoor areas included play equipment, a sunken trampoline, and sensory gardens.

Because the needs of people living in a development like Community Places will, invariably, change over time we built in flexibility so that spaces could adapt in line with those needs, providing the security of longevity for residents. As the needs of the Local Authority changed, some rooms were remodelled from respite rooms to additional self-contained apartments.

We also ‘over specified’ in many areas, to future-proof the safety of the development. For example, new standards for fire safety and the use of sprinklers in care environments take effect in March 2025. We specified sprinklers in this care home in 2015 not only because we anticipated future legislation but because it was the right thing to do.

Architectural Team

  • Managing Director

    Tony Bowling

    Tony Bowling

    Managing Director

    Accreditations: BSc (Hons) Architectural Technology, ICIOB – Incorporated Chartered Institute of Building, CIAT affiliate

    Skills: Autodesk CAD, project management, specification writing, contract administration, principal designer, knowledge of building regulations, energy performance of buildings, designing for neurodiversity.

    About Tony

    Tony is the Big Dog of Farrar Bamforth Architecture. Starting his career here in 1999, he acquired the business and became Managing Director in 2018. Tony loves process driven buildings; creating buildings that can make a positive impact on business performance and people’s lives. Tony takes an intuitive approach to architecture and can often be found in buildings waving his hands around to indicate where rooms should go. He’s also a ‘fixer’; solving problems and dealing with the difficult issues others would rather delegate. Think ‘Mr Wolf’ in Pulp Fiction but with building regulations rather than dead bodies.

    In his many years with the company, his favourite project so far has been Berendsen Laundry in Durham. A £5million build and £5million fit-out, Tony was involved from start to finish and enjoyed the perfect combination of interesting job, great client, and good team of contractors and consultants.

    And finally…

    Tony’s favourite toast topping is two rashers of bacon, brown sauce, and another slice of toast. That’s a sandwich Tony (there’s always one 🙄). When not standing in buildings waving his arms around, he can often be found at heavy metal or Adam Ant concerts, supporting Wakefield Trinity, playing touch rugby, or watching bad car chase movies. Though not, apparently, the Fast and the Furious (too bad).

    ×

Architectural services provided

  • Feasibility Study

    MORE INFO

    Feasibility Study

    A feasibility study allows you to comprehensively evaluate the viability of an architectural project before committing significant investments to it. Viability is assessed from architectural, financial, and environmental perspectives. As well as the functional aspects of the build, it also includes some preliminary designs, allowing you to start visualising the outcome. The process could include a pre-application submission to the planning department for their opinion prior to a formal application. Conducting a detailed feasibility study protects you against the, often costly, ‘surprises’ that can come from not anticipating and taking steps to avoid the pitfalls that come from not being suitably prepared.

    ×
  • Design

    MORE INFO

    Design

    There is a much-used phrase that applies to all design but was specifically coined for architecture: ‘form follows function’ and it’s something that we live by. Primarily, buildings and interios have to work so we listen to our clients when they tell us what the structure needs to do for them. For our commercial and industrial clients, this is often 95% of the brief. For residential projects, whether a housing development or a bespoke high-end dwelling, functionality and aesthetic appeal need to be finely balanced. We are equally skilled in both approaches and always client-led.

    ×
  • Planning

    MORE INFO

    Planning

    Applying for and gaining the appropriate planning permission is a vital element of the architectural process; without it, you can’t proceed. Planning policy can be complex and, if not navigated correctly, can be time consuming and, sometimes, unsuccessful. We know planning. We understand the policies and the application requirements; in fact, we have a track history of securing planning permission on complex sites that initially seemed problematic.

    ×
  • Building Regulations

    MORE INFO

    Building Regulations

    Building regulations are simultaneously the rules that keep us safe and the requirements that give architects and builders headaches as they strive for compliance with ever-evolving specifications. Not a problem for us though, as several members of the team live for the minutiae and details of regulations, and standards so we’re all over them. That not only means that your development complies with (and often, exceeds) building regs but that we also know the strategies for working with regulations in ways that don’t compromise creativity, function, or budgets.

    ×
  • Project Management

    MORE INFO

    Project Management

    Project management is all about taking care of the whole shebang. It’s more than contract administration, it’s holding your hand through the whole process: managing all parties, making sure that things happen when they should and to the standards demanded. We also ‘sort stuff out’, because not everything goes to plan all the time and fixing s**t is all part of the service! Project management of a build removes the stress from you and gives you peace of mind that stuff is just getting done.

    ×

Love this stuff?

If you’re interested in our work for people with learning disabilities and complex needs, you can read about the purpose-built development we designed for Ivy Lane School, a specialist secondary school for those with additional needs

If you would like to discuss a project in this area, please contact Tony Bowling tony@farrarbamforth.co.uk, or call 01484 424008 and speak to any member of the team.

What we're up to