Fresh Futures – Brian Jackson College
Renovation of retail space for alternative provision setting

Stuff to do

Fresh Futures is a regional charity supporting vulnerable and disadvantaged young people and their families in Kirklees. They appointed us to remodel a former retail unit into teaching space for vocational studies at one of their college settings, Brian Jackson College in Heckmondwike. The college is an alternative provision facility for young people who struggle to access mainstream education.

The brief was to convert the existing building to create the most effective use of space to support the college’s activities, which is focused on practical and vocational skills, as well as determine how it will be connected to the rest of the college building.

How we got stuff done

As is often the case with alternative provision settings, this is not a typical school building, and they weren’t looking for typical school classrooms.

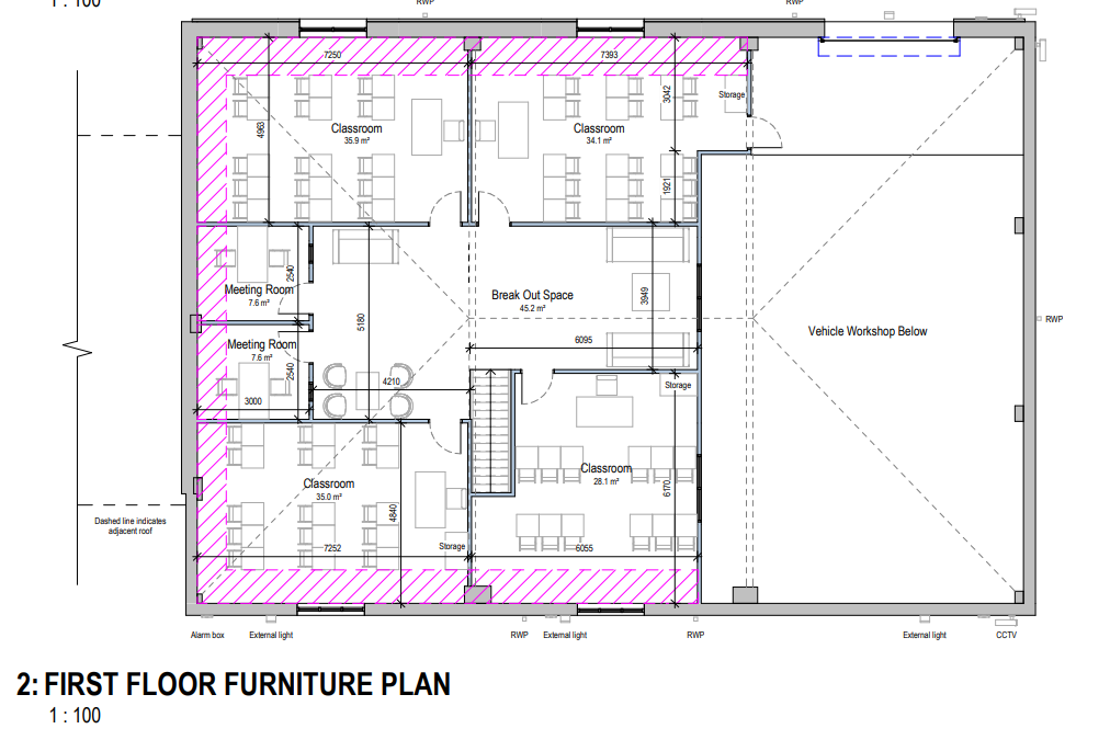
The teaching spaces had to be a mix of traditional classrooms (on the first floor) and specialist areas for vocational learning on the ground floor, including a vehicle workshop with two post ramps, a space for teaching construction skills, and a teaching kitchen.

One of the most important aspects of the development was upgrading the building both thermally and acoustically in line with best practice guidelines. Many services users are neurodivergent and sensitive to sound and temperature, so this was vital to creating supportive conditions for learning.

We love to work on these kinds of projects that deliver valuable support to young people who have had a difficult start. The timeframe was tight, due to the need to open for the forthcoming academic year, and budget was limited but we knew we could deliver a good solution due to the experience we’ve built up in this sector.

  • Farrar Bamforth has assisted us with a diverse range of projects involving the conversion and refurbishment of existing buildings for specialist education purposes. From the early stages, they have consistently provided their expertise and guidance, assessing the feasibility of our projects and going above and beyond to create 3D visuals of the proposals. Their comprehensive package of information has assisted us through planning, building control, and tender stages, ensuring projects ran smoothly. We have experienced a high level of service throughout multiple projects and look forward to working with them in the future.

    Emma Cavanagh, Fresh Futures

Architectural services provided

  • Feasibility Study

    MORE INFO

    Feasibility Study

    A feasibility study allows you to comprehensively evaluate the viability of an architectural project before committing significant investments to it. Viability is assessed from architectural, financial, and environmental perspectives. As well as the functional aspects of the build, it also includes some preliminary designs, allowing you to start visualising the outcome. The process could include a pre-application submission to the planning department for their opinion prior to a formal application. Conducting a detailed feasibility study protects you against the, often costly, ‘surprises’ that can come from not anticipating and taking steps to avoid the pitfalls that come from not being suitably prepared.

    ×
  • Design

    MORE INFO

    Design

    There is a much-used phrase that applies to all design but was specifically coined for architecture: ‘form follows function’ and it’s something that we live by. Primarily, buildings and interios have to work so we listen to our clients when they tell us what the structure needs to do for them. For our commercial and industrial clients, this is often 95% of the brief. For residential projects, whether a housing development or a bespoke high-end dwelling, functionality and aesthetic appeal need to be finely balanced. We are equally skilled in both approaches and always client-led.

    ×
  • Planning

    MORE INFO

    Planning

    Applying for and gaining the appropriate planning permission is a vital element of the architectural process; without it, you can’t proceed. Planning policy can be complex and, if not navigated correctly, can be time consuming and, sometimes, unsuccessful. We know planning. We understand the policies and the application requirements; in fact, we have a track history of securing planning permission on complex sites that initially seemed problematic.

    ×
  • Building Regulations

    MORE INFO

    Building Regulations

    Building regulations are simultaneously the rules that keep us safe and the requirements that give architects and builders headaches as they strive for compliance with ever-evolving specifications. Not a problem for us though, as several members of the team live for the minutiae and details of regulations, and standards so we’re all over them. That not only means that your development complies with (and often, exceeds) building regs but that we also know the strategies for working with regulations in ways that don’t compromise creativity, function, or budgets.

    ×
  • Tender

    MORE INFO

    Tender

    There are multiple trades, suppliers, contractors, and consultants involved in any build. Sourcing the right ones is a central component of the process and doing that needs to be fair, transparent, and objective-driven. We can conduct tendering to ensure that each job gets the right providers in place to deliver on the scheme we’ve created.

    ×

Love this stuff?

We have worked on several special schools and alternative provision projects and it’s an issue very close to our hearts. A key project for us is Ivy Lane School, which you can see more details about here.

To discuss an educational project or anything else, contact Tony Bowling at tony@farrarbamforth.co.uk on 01484 424008 or speak to anyone else on the team.

What we're up to