Lawefield Primary School
Remodelling and increasing accessibility

Stuff to do

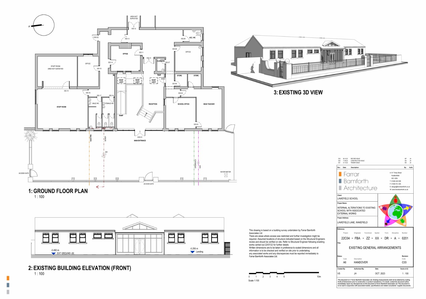
Lawefield Primary School had an entrance and interior layout that was no longer fit for purpose as the school had grown and the requirements of the building became more diverse. We were appointed to make the school more accessible and work better for the needs of staff and students.

How we got stuff done

Our solution included removing the old entrance to the school and replacing it with a fully accessible structure, including a ramp for wheelchair access. We remodelled part of the interior, creating staff offices and functional spaces including a speech and language room, learning/intervention rooms, and a first aid room, as well as much needed storage space.

In addition to architectural services, we also conducted the tendering process for contractors and took responsibility for health & safety as principal designer under CDM regulations 2015. To minimise disruption to the school, works were primarily conducted over the summer holidays.

Architectural team

  • Associate

    Joe Hobson

    Associate

    Accreditations: BSc (Hons) Architectural Technology, MCIAT, CSCS – Professionally Qualified Person

    Skills: Autodesk CAD, Autodesk Revit / BIM, Contract Administration, Project Management, Principal Designer, Lumion / Twinmotion, SketchUp, Drone Operator and CAA licence holder

    About Joe

    As Associate, Joe is Tony’s right-hand man, playing an integral role in running the business and leading the team. Joe focuses predominantly on commercial and industrial clients and is a skilled project manager. Starting his career with Farrar Bamforth in 2010, he briefly went over to the dark side (Leeds) in 2015 but returned to the FBA fold in 2017 to take up a senior management role (and also because we’re awesome!). He introduced BIM and Revit to Farrar Bamforth and is the driving force behind our continued compliance and best practice in this area. His favourite project to date was the Magic Rock Brewery and Bar, in equal parts due to the creativity of the project and his love of beer.

    And finally…

    A lathering of high-end butter, Lurpak, is all Joe needs on his toast. Joe is a Civil Aviation Authority license holder and drone operator and, when he’s not working, enjoys following Huddersfield Town Football Club, music, travel, and time with the family.

    ×
  • Managing Director

    Tony Bowling

    Tony Bowling

    Managing Director

    Accreditations: BSc (Hons) Architectural Technology, ICIOB – Incorporated Chartered Institute of Building, CIAT affiliate

    Skills: Autodesk CAD, project management, specification writing, contract administration, principal designer, knowledge of building regulations, energy performance of buildings, designing for neurodiversity.

    About Tony

    Tony is the Big Dog of Farrar Bamforth Architecture. Starting his career here in 1999, he acquired the business and became Managing Director in 2018. Tony loves process driven buildings; creating buildings that can make a positive impact on business performance and people’s lives. Tony takes an intuitive approach to architecture and can often be found in buildings waving his hands around to indicate where rooms should go. He’s also a ‘fixer’; solving problems and dealing with the difficult issues others would rather delegate. Think ‘Mr Wolf’ in Pulp Fiction but with building regulations rather than dead bodies.

    In his many years with the company, his favourite project so far has been Berendsen Laundry in Durham. A £5million build and £5million fit-out, Tony was involved from start to finish and enjoyed the perfect combination of interesting job, great client, and good team of contractors and consultants.

    And finally…

    Tony’s favourite toast topping is two rashers of bacon, brown sauce, and another slice of toast. That’s a sandwich Tony (there’s always one 🙄). When not standing in buildings waving his arms around, he can often be found at heavy metal or Adam Ant concerts, supporting Wakefield Trinity, playing touch rugby, or watching bad car chase movies. Though not, apparently, the Fast and the Furious (too bad).

    ×
  • Architectural Technologist

    Nathan Pearce

    Architectural Technologist

    Accreditations: BSc (Hons) Architectural Technology, ACIAT

    Skills: Adobe Photoshop, Autodesk CAD, BIM / Autodesk Revit, Computer Generated Images (CGI), SketchUp, Twinmotion

    About Nathan

    Joining us in 2023. Nathan is one of the freshest faces at Farrar Bamforth but he’s already making an impact. Nathan pursued a career in architecture due to a desire to create spaces that have a positive impact on both people and the environment and his favourite project so far was a residential development in Calderdale which made use of BIM to design a mix of dwellings on a multi-level site. He is also a regulation and policy enthusiast, and devoted to all the small details that help to keep us compliant. It was this attention to detail that helped secure him a promotion from Junior Architectural Technologist to Architectural Technologist in January 2024. See more here.

    And finally…

    Nathan’s favourite toast topping is… butter. In Nathan’s words “let’s make the world a butter place”. When not at work, Nathan enjoys baking cakes (more butter!) and then wondering where they’ve gone. We’re sure you feel ‘butter’ for knowing that 🙄

    ×

Architectural services provided

  • Feasibility Study

    MORE INFO

    Feasibility Study

    A feasibility study allows you to comprehensively evaluate the viability of an architectural project before committing significant investments to it. Viability is assessed from architectural, financial, and environmental perspectives. As well as the functional aspects of the build, it also includes some preliminary designs, allowing you to start visualising the outcome. The process could include a pre-application submission to the planning department for their opinion prior to a formal application. Conducting a detailed feasibility study protects you against the, often costly, ‘surprises’ that can come from not anticipating and taking steps to avoid the pitfalls that come from not being suitably prepared.

    ×
  • Planning

    MORE INFO

    Planning

    Applying for and gaining the appropriate planning permission is a vital element of the architectural process; without it, you can’t proceed. Planning policy can be complex and, if not navigated correctly, can be time consuming and, sometimes, unsuccessful. We know planning. We understand the policies and the application requirements; in fact, we have a track history of securing planning permission on complex sites that initially seemed problematic.

    ×
  • Building Regulations

    MORE INFO

    Building Regulations

    Building regulations are simultaneously the rules that keep us safe and the requirements that give architects and builders headaches as they strive for compliance with ever-evolving specifications. Not a problem for us though, as several members of the team live for the minutiae and details of regulations, and standards so we’re all over them. That not only means that your development complies with (and often, exceeds) building regs but that we also know the strategies for working with regulations in ways that don’t compromise creativity, function, or budgets.

    ×
  • Tender

    MORE INFO

    Tender

    There are multiple trades, suppliers, contractors, and consultants involved in any build. Sourcing the right ones is a central component of the process and doing that needs to be fair, transparent, and objective-driven. We can conduct tendering to ensure that each job gets the right providers in place to deliver on the scheme we’ve created.

    ×
  • Project Management

    MORE INFO

    Project Management

    Project management is all about taking care of the whole shebang. It’s more than contract administration, it’s holding your hand through the whole process: managing all parties, making sure that things happen when they should and to the standards demanded. We also ‘sort stuff out’, because not everything goes to plan all the time and fixing s**t is all part of the service! Project management of a build removes the stress from you and gives you peace of mind that stuff is just getting done.

    ×
  • Contract Administration

    MORE INFO

    Contract Administration

    Contract administration is all about making sure everything happens according to the terms of the contract. When we take on responsibility for contract administration, you can be reassured that everyone delivers as agreed. That means providers are held to account, budgets are tightly managed, and deadlines are met.

    ×
  • Principal Designer

    MORE INFO

    Principal Designer

    All projects that involve more than one contractor must have an appointed Principal Designer. It’s their job to advise and assist you on all aspects of health and safety on the project, starting at pre-construction phase. We can act as Principal Designer, ensuring that all parties comply with their responsibilities and that the build is safe for all working on it, all who may be affected by the works, and all who will use it once completed.

    ×

Love this stuff?

If you love to see accessibility at the heart of a project, take a look at our RISE Adaptations case study, where we have helped install multiple accessible toilets and changing facilities in even the most challenging spaces. Alternatively, contact Joe at joe@farrarbamforth.co.uk or anyone else on the team to discuss what we can do for you on 01484 424008.

What we're up to