The Paddock, Kirkheaton
Bespoke home renovation

Stuff to do

The brief for this domestic project was to adapt an existing property to modernise it and make it fit for purpose. While the clients’ children had grown up and left home, they still wanted the space for large family gatherings. They also needed to future-proof it so that it would continue to meet their needs as they got older.

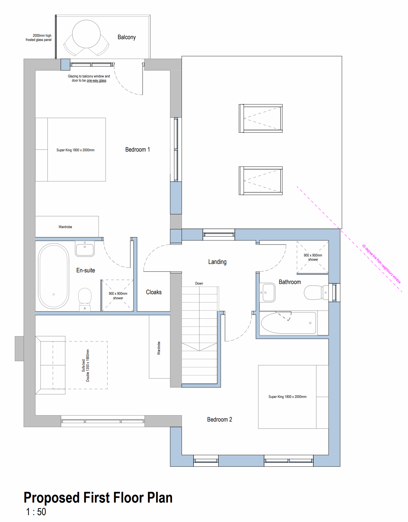
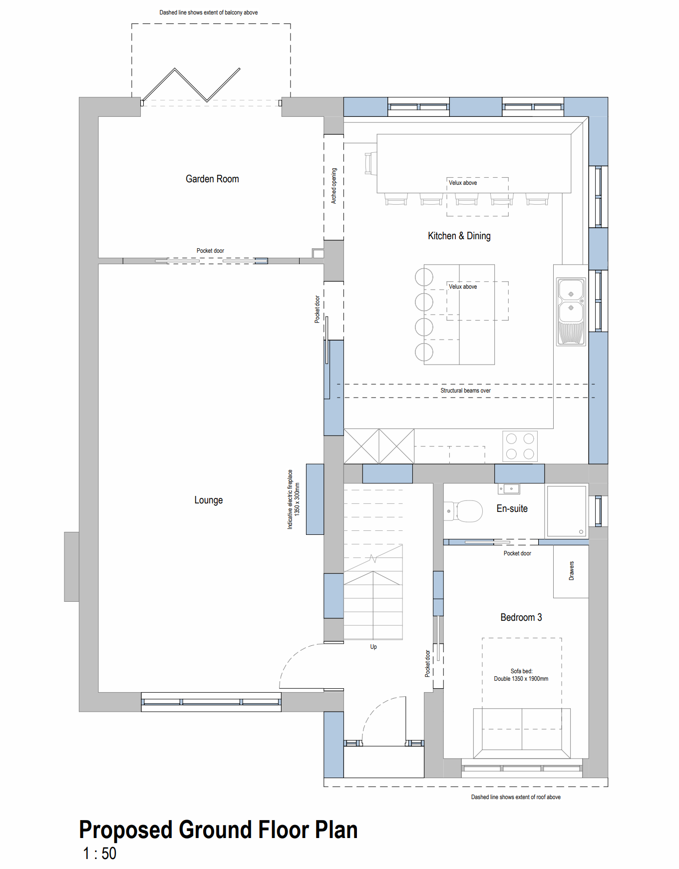
This needed to include a bedroom on the ground floor, replace an unsafe kite-winder design staircase, maximise the views from the property, and extend the kitchen/dining area to allow for sit down meals of up to 20 people. Most significantly, the clients wanted the house to present in a unique way in the street, making it distinctive from other properties that had been extended.

How we got stuff done

This project’s greatest challenge was balancing the objectives of the clients with the requirements of planning permission. Plans had to be varied over time to make sure both parties were happy with the final design, but we were still able to secure a balcony and a bay window with views over the valley below due to our solution that avoided overlooking neighbouring properties, and a bespoke design that looked very different from other homes on the street but was still sufficiently within the vernacular style of the area.

The finished design concept included a part single-storey extension to the rear, to create the large kitchen/diner area, and part two-storey extension at the front with a sloping roof with dormer window. To create the unique look they sought, we specified the exterior be part-wrapped in a blue/grey timber effect cladding.

Internally, we created a ground floor bedroom and two large first floor bedrooms, one of which with an en suite bathroom, dressing room, and the balcony. The staircase was replaced with a safer alternative in a better location in the entrance lobby and the space was optimised to create a more ergonomic and space-efficient layout. The kitchen/diner included a bespoke seating arrangement that could accommodate 12-20 people.

While some initial proposals had to be compromised to achieve planning permission (a feature fireplace, Velux window to create a light hall, and ‘hidden’ door to the ground floor en suite), we were delighted to navigate our way through the process to secure the balcony and distinctive external features. Full planning permission has been granted based on the design concepts shown, however the construction work is yet to start.

Architectural team

  • Managing Director

    Tony Bowling

    Tony Bowling

    Managing Director

    Accreditations: BSc (Hons) Architectural Technology, ICIOB – Incorporated Chartered Institute of Building, CIAT affiliate

    Skills: Autodesk CAD, project management, specification writing, contract administration, principal designer, knowledge of building regulations, energy performance of buildings, designing for neurodiversity.

    About Tony

    Tony is the Big Dog of Farrar Bamforth Architecture. Starting his career here in 1999, he acquired the business and became Managing Director in 2018. Tony loves process driven buildings; creating buildings that can make a positive impact on business performance and people’s lives. Tony takes an intuitive approach to architecture and can often be found in buildings waving his hands around to indicate where rooms should go. He’s also a ‘fixer’; solving problems and dealing with the difficult issues others would rather delegate. Think ‘Mr Wolf’ in Pulp Fiction but with building regulations rather than dead bodies.

    In his many years with the company, his favourite project so far has been Berendsen Laundry in Durham. A £5million build and £5million fit-out, Tony was involved from start to finish and enjoyed the perfect combination of interesting job, great client, and good team of contractors and consultants.

    And finally…

    Tony’s favourite toast topping is two rashers of bacon, brown sauce, and another slice of toast. That’s a sandwich Tony (there’s always one 🙄). When not standing in buildings waving his arms around, he can often be found at heavy metal or Adam Ant concerts, supporting Wakefield Trinity, playing touch rugby, or watching bad car chase movies. Though not, apparently, the Fast and the Furious (too bad).

    ×

Architectural services provided

  • Feasibility Study

    MORE INFO

    Feasibility Study

    A feasibility study allows you to comprehensively evaluate the viability of an architectural project before committing significant investments to it. Viability is assessed from architectural, financial, and environmental perspectives. As well as the functional aspects of the build, it also includes some preliminary designs, allowing you to start visualising the outcome. The process could include a pre-application submission to the planning department for their opinion prior to a formal application. Conducting a detailed feasibility study protects you against the, often costly, ‘surprises’ that can come from not anticipating and taking steps to avoid the pitfalls that come from not being suitably prepared.

    ×
  • Design

    MORE INFO

    Design

    There is a much-used phrase that applies to all design but was specifically coined for architecture: ‘form follows function’ and it’s something that we live by. Primarily, buildings and interios have to work so we listen to our clients when they tell us what the structure needs to do for them. For our commercial and industrial clients, this is often 95% of the brief. For residential projects, whether a housing development or a bespoke high-end dwelling, functionality and aesthetic appeal need to be finely balanced. We are equally skilled in both approaches and always client-led.

    ×
  • Planning

    MORE INFO

    Planning

    Applying for and gaining the appropriate planning permission is a vital element of the architectural process; without it, you can’t proceed. Planning policy can be complex and, if not navigated correctly, can be time consuming and, sometimes, unsuccessful. We know planning. We understand the policies and the application requirements; in fact, we have a track history of securing planning permission on complex sites that initially seemed problematic.

    ×

Love this stuff?

If you want to see more examples of custom designed homes, take a look at our Primrose Farm Barn Conversion or Quarmby case studies. Alternatively, contact Tony at tony@farrarbamforth.co.uk or anyone else on the team to discuss what we can do for you on 01484 424008.

What we're up to